ContactRéserver
Revenir aux hébergements

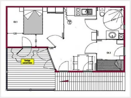
Chalet PMR

  • 2/4 personnes
  • 2 chambres
  • 35m²

Description :

  • Equipé de la climatisation
  • Séjour + TV ;
  • Coin cuisine tout équipé (2 plaques de cuisson à gaz, réfrigérateur congélateur, micro-ondes, cafetière) ;
  • Salle d’eau (douche, lavabo) et WC ;
  • 1 chambre avec lit de 140/190 cm + volets ;
  • 1 chambre avec lits superposés + volets ;
  • Terrasse couverte intégrée (12m²) avec salon de jardin ;
  • Ce chalet est entièrement adapté et équipé pour les personnes à mobilité réduite.
Trouver un séjour

Fermer

Contact

VOIR LES TÉLÉCHARGEMENTS

carte mer et montagne
Tous les Hébergements
Toutes Capacités

Les réservations ne sont pas encore disponibles.

Recherche en cours